Measuring your bathroom properly is essential to ensure all of your products fit as planned. Miscalculated measurements can cause costly delays down the track, so always measure twice before you make your selections. Your builder, plumber or project manager can also help you with this process.
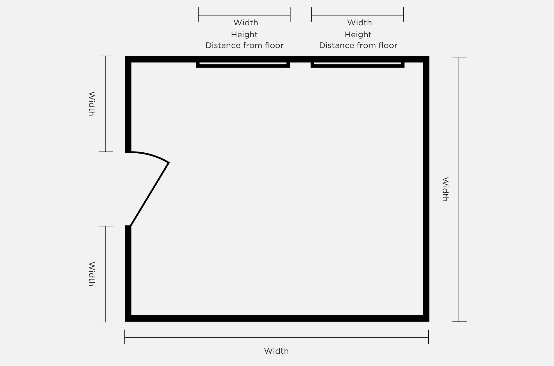
Be sure to measure the ceiling height on every wall as they may not all be exactly the same.
Measure and note the placement of any existing wall plumbing, electrical and light fittings.
Measure the location of obstacles (include doors, windows, and pipe chases) along each wall. Record their width, height and depth (from their outer edges).
Check the squareness of the corners at the floor, base and wall cabinet levels. So you can account for any issues you might have during installation.
Measure wall to wall and ceiling to floor, noting any projections and obstacles including windows, doors and external fittings. Draw or sketch your floor plan from overhead and also from a front on perspective. Where you can, include photos to give your renovation team a clear picture of what they're working with.
Remember to account for pipes, fixtures and other furniture items to ensure you have adequate space around the unit to access cupboards, open doors and drawers. Measure the distance from the finished floor to the centre of the waste pipe, and the location of the water inlet. Your plumber can help you to ensure these important measurements are correct.

Setout
The 'setout' of your toilet suite is the measurement of the waste pipe from the wall to the centre of the pipe. If you are replacing an existing toilet suite and do not want to change the plumbing, you will need to ensure that your new toilet suite will fit the existing plumbing.
Measure the height, depth and width of your vanity. If including a mirrored cabinet, also consider if you plan to recess it into the wall.

You will need to account for the height of the shower, its width and depth. Measure the distance from each wall to accurately position the placement of your drain.
![]()
Your existing plumbing might predetermine the position of your shower. If you're starting from scratch, a good standard height for your shower head is 205cm from the ground.
To plan for the best placement of your bath, start by measuring the distance between where the bath will be placed and the wall, being sure to account for drain placement. For freestanding baths, position the bath far enough from the wall to allow access for cleaning. Be sure to also measure both the hob surrounding the bath, as well as the bath itself.